陈女士夫妻不久前在北京拿下了一套建筑面积110㎡的二居室,因为家里有孩子了,对日常的存储功能要求也是非常大。有限的预算下设计师主要采用低成本处理墙面的方式来营造整体风格。

房屋信息
坐标:北京
面积:110㎡
风格:现代
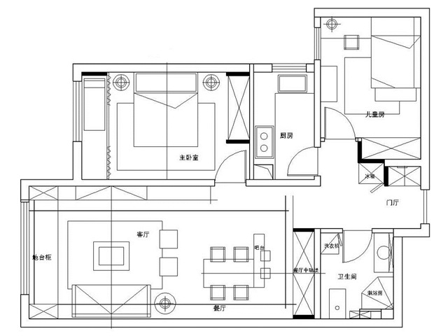
平面户型图

是一个北京比较少见的二居户型,为满足大容量需求,设计师对室内部分非承重墙进行了更改。
改造前
儿童房衣柜区和玄关柜一样大,收纳容量可能不够。
靠墙冰箱尺寸过大会外露出墙,影响整体感,且冰箱旁边空出的位置使用率不高。
改造后
利用了放冰箱多出来的空间,扩大了儿童房衣柜空间。
更改冰箱朝向,完美布置在了墙体里。
平面设计图

硬装完工

硬装完工之后的样子,空间格局有了很大的。8米长大客厅,靠近落地窗设计了休闲小飘窗,还是带储物功能的。

电视墙改造成十分实用的造型,展示和收纳功能各占一半。

餐厅在餐桌和收纳柜中间增加了一个小吧台,实现空间功能区叠加,也让整体的布局更加紧凑了。

儿童房定制了整体家居,为孩子打造舒适的休息区和学习区。

进门视角,整体采光十分明亮,软著搭配都是点到为止,增加家里空间的柔和与舒适。


收纳 展示的客厅电视柜将整体收纳量提升了30%,灰色调营造减压式的现代时尚风。


电视柜连接地柜,无死角利用墙角空间,满足了一般家庭大容量的收纳需求。也增添了生活的休闲气质。



控制预算的情况下,墙面做多色处理,简单又有层次感。

小挂钟、装饰画缓解墙面单薄,营造更多在家的生活气息。

单一的餐厅功能被吧台一分为二,满足餐桌靠墙的布置,同时也多出一个日常办公喝下午茶的功能,满足了屋主在家工作的需要。

厨房墙砖、橱柜经过设计师精挑细选,搭配整齐干净,又不乏时尚感。

卧室简约雅致,用配饰营造质感。

儿童房采用了和客厅墙同样的处理手法,床柜一体的家具提供了大量的收纳空间,还腾出了学习区的布置空间。
来源:欧式装修风格

