装修过程中涉及到墙体改造的一定是大工程,不仅是预算和工程量的增长,施工难度也会比普通装修更高。很多房型不合理的地方都可通过合理的拆改墙体做适当的调整,今日小编就找了套建面87㎡的三房案例来分析一下拆改墙体的那些细节。
原始房型图及业主需求

本案例是一套三室一厅的二手房,房型虽无大问题,但细看会发现格局内还有较大调整空间。两间次卧空间都太小,作为儿童房勉强够了,但成年人特别是夫妻居住就太过局促。业主希望扩大朝北次卧的面积,让居住更舒适。
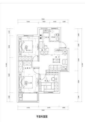
房型设计方案一

墙体改动区域一:厨卫
卫浴间仅改动卫浴门,改变原房型内进出需通过厨房的格局。
而厨房墙面则有较大改动,敲掉了与客厅之间的墙面,改为开放式厨房,以餐桌为界限替代墙面划分餐厨空间。
墙体改动区域二:客厅
客厅是家中的核心区域,墙体也与其他区域相关联,客厅内仅敲掉了与朝南次卧间的墙体改为橱柜,客厅布置也较为简单,放置沙发、电视、冰箱等家具,保持清爽干净的格局。
墙体改动区域三:卧室
三间卧室改动最大,朝南次卧敲掉墙面做橱柜,内部做榻榻米床,满足休息与收纳功能。
北次卧与主卧间墙面向南平移,封掉次卧客厅朝向房门改向主卧方向,次卧增加的空间可摆放衣柜拓展屋内功能性。
主卧面积减少后,把屋内凸出空间改为衣帽间,不仅美观还最大化利用了空间。
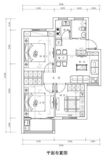
房型设计方案二

墙体改动区域一:厨卫
卫浴墙体改动方案不变,厨房则把墙体向内收缩,做成封闭式的小厨房隔绝油烟,剩余空间留给餐厅用餐空间可更宽裕。
墙体改动区域二:餐客厅
厨房墙体收缩餐客空间随之变大,在摆放电视柜的位置添置一面背景墙,墙后玄关可做鞋柜美观又丰富功能性。
墙体改动区域三:卧室
南侧次卧墙体不变,放置衣柜床铺做老人卧房即可。
墙体改动集中在朝北次卧与主卧之间,敲掉两间卧室间墙面后,一分为二重新划分空间,在中间留出共用走道,改变卧房开门方向,改造后可多出一南一北两间面积相同的主卧。
设计编后:
墙体改造切莫画空中楼阁,特别是一些业主喜欢独自天马行空,没考虑过墙体是不是承重墙这个问题,改造前一定要找来专业设计师量房后再确定方案,否则再好的设计也只是空欢喜一场哦!

